Diagonal element bolted on a gusset plate

For both ends of the selected diagonal elements, gusset plate connection can be designed.

Possible configurations are:

angle diagonal with single bolt row

image\DiagonalFig6.gif

angle diagonal with double staggered bolt row

image\DiagonalFig7.gif

channel diagonal bolted through flange with single bolt row

image\DiagonalFig8.gif

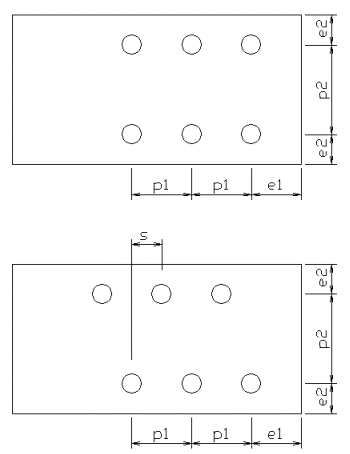
channel diagonal bolted through web with double (non) staggered bolt row

image\DiagonalFig9.gif

I section diagonal bolted through flange with double (non) staggered bolt row

image\DiagonalFig10.gif

 

Bolt configurations

Angle section

image\DiagonalBolts1.gifimage\DiagonalBolts2.gif

Channel section

image\DiagonalBolts3.gifimage\DiagonalBolts4.gif

I section

image\DiagonalBolts5.gif

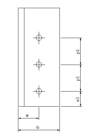
Gusset plate

image\DiagonalBolts6.gif

 

SCIA web

Downloads

SCIA is part of the Nemetschek group